Тема
Извещение о проведении открытого конкурса на право заключения договора на размещение нестационарного торгового объекта на территории муниципального образования «Город Астрахань»
Извещение
о проведении открытого конкурса
на право заключения договора на размещение нестационарного торгового объекта на территории муниципального образования «Город Астрахань»
Уполномоченный орган: Управление торговли и предпринимательства администрации муниципального образования «Город Астрахань», выступающее от имени администрации муниципального образования «Город Астрахань».
Адрес: 414000, Астраханская область, г. Астрахань, ул. Чернышевского, д. 6.
Контактный телефон: (8512) 24-49-77
E-mail: 244977ast@mail.ru
Ответственное должностное лицо: Григоршева Людмила Борисовна
Открытый конкурс на право заключения договора на размещение нестационарного торгового объекта на территории муниципального образования «Город Астрахань» (далее – Конкурс) проводится в соответствии с постановлением администрации муниципального образования «Город Астрахань» от 05.11.2015 №7645 «О размещении нестационарных торговых объектов, расположенных на территории муниципального образования «Город Астрахань», с изменениями, внесенными постановлениями администрации муниципального образования «Город Астрахань» от 25.12.2015 №9039, от 04.02.2016 №603, от 31.03.2016 №2054. Размещение нестационарных торговых объектов осуществляется в соответствии со схемой размещения нестационарных торговых объектов на территории муниципального образования «Город Астрахань», утвержденной постановлением администрации города Астрахани от 10.04.2015 №2090 «Об утверждении схемы размещения нестационарных торговых объектов на территории муниципального образования «Город Астрахань».
Предметом Конкурса является - право на размещение нестационарного торгового объекта на территории муниципального образования «Город Астрахань».
Прием заявок на участие в Конкурсе осуществляется по адресу:
Астраханская область, г. Астрахань, ул. Чернышевского, д. 6, каб. 310.
Дата начала приема заявок с 8 часов 30 минут 20 мая 2016 г.
Дата окончания приема заявок 17 часов 30 минут 08 июня 2016 г.
Заявки принимаются ежедневно по рабочим дням с перерывом на обед с 13.00 ч. до 14.00 ч. по местному времени, кроме субботы, воскресенья и праздничных дней.
Вскрытие конвертов с заявками на участие в Конкурсе будет проводиться 09 июня 2016 г. в 10 часов 00 минут по местному времени по адресу: 414000, Астраханская область, г. Астрахань, ул. Чернышевского, д. 6, Малый зал.
Рассмотрение и оценка заявок на участие в Конкурсе будет проводиться 13 июня 2016 г. в 10 часов 00 минут по местному времени по адресу: 414000, Астраханская область, г. Астрахань, ул. Чернышевского, д. 6, Малый зал.
В Конкурсе может принять участие любое юридическое лицо независимо от организационно-правовой формы, формы собственности, а также индивидуальные предприниматели, осуществляющие предпринимательскую деятельность на законных основаниях.
Участник Конкурса не должен находиться в процессе ликвидации или признания неплатежеспособным (банкротом), его деятельность на момент подачи и рассмотрения заявки на участие в Конкурсе не должна быть приостановлена.
В Конкурсе не могут принимать участие юридические лица и индивидуальные предприниматели, имеющие неисполненную обязанность по уплате налогов, сборов, пеней и санкций, подлежащих уплате в соответствии с нормами законодательства РФ.
Документы, необходимые для участия в Конкурсе, оформленные в соответствии с требованиями конкурсной документации:
1. Заявка на участие в Конкурсе (по форме).
2. Эскизный проект (для павильона, киоска, торгово-остановочного комплекса), дизайн-проект НТО (прочие объекты), согласованный с управлением по строительству, архитектуре и градостроительству администрации муниципального образования «Город Астрахань».
3. Предложение участника Конкурса в отношении предмета Конкурса с указанием предлагаемой цены предмета Конкурса, заполненное в произвольной форме.
4. Копии учредительных документов участника Конкурса (для юридического лица).
5. Копия свидетельства о государственной регистрации юридического лица или копия свидетельства о государственной регистрации физического лица в качестве индивидуального предпринимателя, копия свидетельства о внесении записи в Единый государственный реестр индивидуальных предпринимателей.
6. Выписка из Единого государственного реестра юридических лиц (для юридических лиц) или выписка из Единого реестра индивидуальных предпринимателей (для индивидуальных предпринимателей), которая получена не ранее чем за шесть месяцев до даты размещения извещения о проведении Конкурса
7. Документ, подтверждающий полномочия лица на осуществление действий от имени участника Конкурса - юридического лица (копия решения о назначении или об избрании либо копия приказа о назначении физического лица на должность, в соответствии с которыми такое физическое лицо обладает правом действовать от имени участника Конкурса без доверенности). В случае, если от имени участника Конкурса действует иное лицо, заявка на участие в Конкурсе должна содержать также доверенность на осуществление действий от имени участника Конкурса либо ее копию, заверенную в установленном порядке (для юридических лиц).
8. Гарантийное письмо заявителя – юридического лица, подтверждающее отсутствие в отношении него процедуры ликвидации или прекращения деятельности в отношении индивидуального предпринимателя, а также вступившего в силу решения суда о признании его банкротом и об открытии конкурсного производства в отношении него (для юридических лиц).
9. Справки уполномоченных органов об отсутствии задолженности заявителя перед бюджетами бюджетной системы Российской Федерации по налогам, сборам и обязательным платежам (инспекции Федеральной налоговой службы по месту постановки на учет хозяйствующего субъекта в соответствии с налоговым законодательством (месту регистрации и месту ведения хозяйственной деятельности), территориальных органов Пенсионного фонда Российской Федерации и Фонда социального страхования Российской Федерации), выданные не более чем за 90 (девяносто) дней до дня размещения на официальном сайте извещения о проведении открытого Конкурса.
10. Опись документов.
11. Иные документы, позволяющие оценить поданную заявку в соответствии с критериями оценки заявок.
Заявка оформляется на русском языке в письменной форме в 2 (двух) экземплярах (оригинал и копия, оригинал которой остается в конкурсной комиссии, копия – у участника Конкурса), каждый экземпляр такой заявки удостоверяется подписью участника Конкурса. Все приложенные к заявке документы должны быть прошиты, скреплены печатью (если предусмотрена), заверены подписью уполномоченного лица в отдельном запечатанном конверте с описью прилагаемых документов в 2 (двух) экземплярах.
Участник Конкурса вправе приложить иные документы, для подтверждения данных, указанных в Предложении о функциональных и качественных характеристиках услуг.
Архитектурный (внешний) облик нестационарного торгового объекта должен соответствовать архитектурному облику сложившейся застройки. Эскизный проект (для павильона, киоска, торгово-остановочного комплекса), дизайн-проект НТО (прочие объекты) должен быть согласован с управлением по строительству, архитектуре и градостроительству администрации муниципального образования «Город Астрахань.
Основной критерии:
Цена предмета Конкурса
Дополнительный критерий
Оснащение специальными техническими средствами, наличие технической документации на НТО, материал объекта, благоустройство прилегающей территории.
Порядок оценки заявок на участие в Конкурсе:
Основной критерий.
Содержание критерия: Цена предмета Конкурса, под которой понимается размер платы за размещение НТО на срок, установленный договором.
Цена предмета Конкурса определяется по формуле:

где Ц - цена за право заключения договора на размещение НТО;
Цуч - цена по договору на размещение объекта, предложенная участником Конкурса;
Цмин - начальная (минимальная) цена по договору на размещение объекта, установленная в извещении и конкурсной документации.
Полученному значению Ц присваивается оценка в баллах в следующем порядке:
- при Ц от 0 до 10 (включительно) - присваивается 1 балл;
- при Ц более 10 до 20 (включительно) - присваивается 3 балла;
- при Ц более 21 до 30 (включительно) - присваивается 5 балла;
- при Ц более 31 до 40 (включительно) - присваивается 7 балла;
- при Ц более 41 до 50 (включительно) - присваивается 9 баллов;
- при Ц более 51 до 60 (включительно) - присваивается 11 баллов;
- при Ц более 61 до 70 (включительно) - присваивается 13 баллов;
- при Ц более 71 до 80 (включительно) - присваивается 15 баллов;
- при Ц более 81 до 90 (включительно) - присваивается 17 баллов;
- при Ц более 91 до 100 (включительно) - присваивается 19 баллов;
- при Ц более 101 до 120 (включительно) - присваивается 21 балл;
- при Ц более 121 до 160 (включительно) - присваивается 23 балла;
- при Ц более 161 до 200 (включительно) - присваивается 25 баллов;
- при Ц более 201 до 250 (включительно) - присваивается 27 баллов;
- при Ц более 251 до 300 (включительно) - присваивается 29 баллов;
- при Ц более 301 до 400 (включительно) - присваивается 31 балл;
- при Ц более 401 до 500 (включительно) - присваивается 33 балла;
- при Ц более 501 до 750 (включительно) - присваивается 35 баллов;
- при Ц более 751 до 1000 (включительно) - присваивается 37 баллов.
Дополнительный критерий.
При оценке заявок по дополнительному критерию комиссия выставляет баллы:
- при отсутствии - 0 баллов по каждому дополнительному критерию;
- при наличии - 3 балла по каждому дополнительному критерию.
Итоговая оценка заявки на участие в Конкурсе (итоговое количество баллов) определяется сложением всех баллов основных и дополнительных критериев.
В случае если две или более конкурсных заявок получили одинаковую итоговую оценку, победителем Конкурса признается участник Конкурса, представивший конкурсную заявку раньше других участников Конкурса.
На основании результатов оценки заявок на участие в Конкурсе конкурсная комиссия присваивает каждой заявке на участие в Конкурсе порядковый номер в порядке уменьшения степени выгодности содержащихся в них условий. Заявке на участие в конкурсе, в которой содержатся лучшие условия, присваивается первый номер.
В случае если в нескольких заявках на участие в Конкурсе содержатся одинаковые условия, меньший порядковый номер присваивается заявке на участие в Конкурсе, которая поступила ранее других заявок на участие в Конкурсе, содержащих такие же условия.
Победителем Конкурса признается участник Конкурса, который предложил лучшие условия на основе критериев, указанных в конкурсной документации, и заявке на участие в Конкурсе, которого присвоен первый номер.
Договор на размещение НТО заключается не позднее чем через 20 (двадцать) дней от даты размещения на официальном сайте администрации муниципального образования «Город Астрахань» протокола на участие в Конкурсе.
Порядок возврата заявок на участие в Конкурсе поступивших после окончания срока подачи этих заявок: конверт с заявкой на участие в Конкурсе, поступивший после истечения срока подачи заявок на участие в Конкурсе, не вскрывается и в случае, если на конверте с такой заявкой указана информация о подавшем ее лице, в том числе почтовый адрес, возвращается заявителю.
Начальная (минимальная) цена предмета Конкурса составляет 2 640 (две тысячи шестьсот сорок) руб.
Исчисляется по следующей методике:
Цмин = С х Кх К1, где:
Цмин – начальная (минимальная) цена предмета открытого Конкурса;
С - средний показатель стоимости 1 квадратного метра за размещение НТО (принимается равным 22 рубля за 1 квадратный метр в день, в соответствии с распоряжением администрации города Астрахани от 07.07.2011 №610-р «Об оплате за размещение нестационарных торговых объектов на территории муниципального образования «Город Астрахань»;
К – количество дней в месяце (условно принимается равным 30 дням);
К1 – срок размещения нестационарного торгового объекта (количество месяцев).
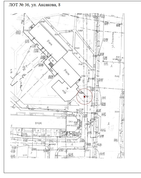
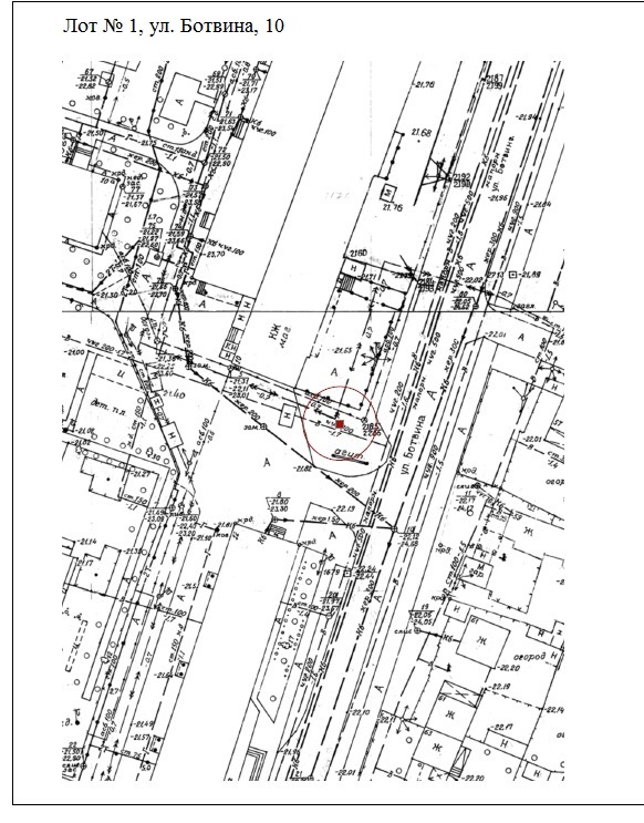
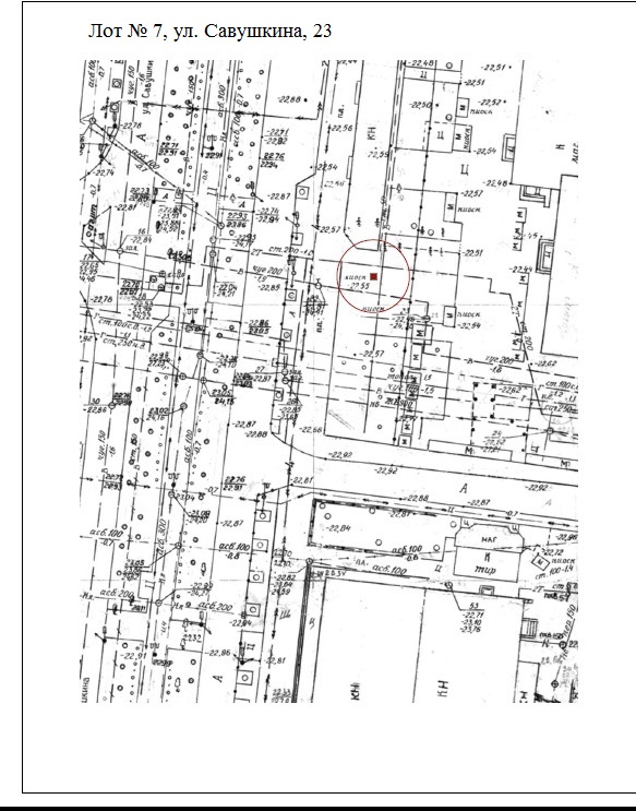
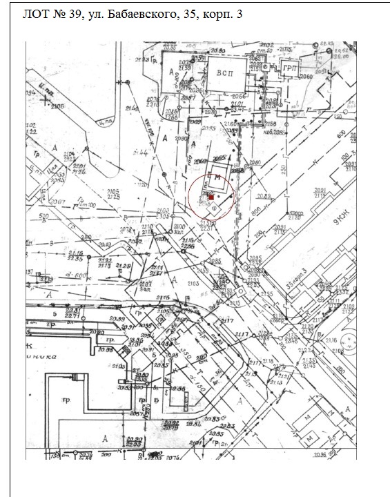
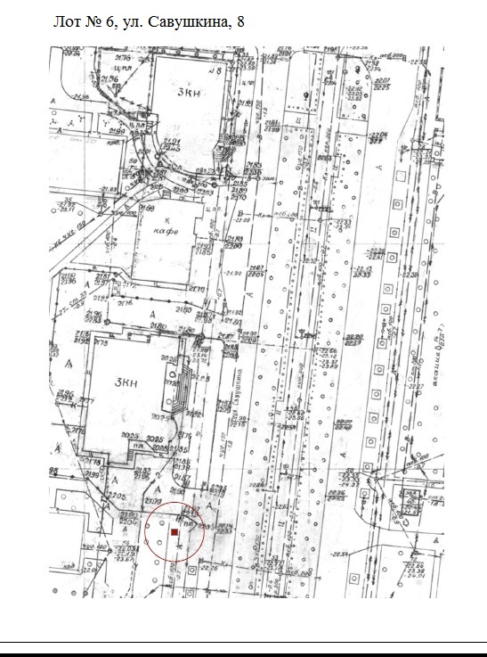
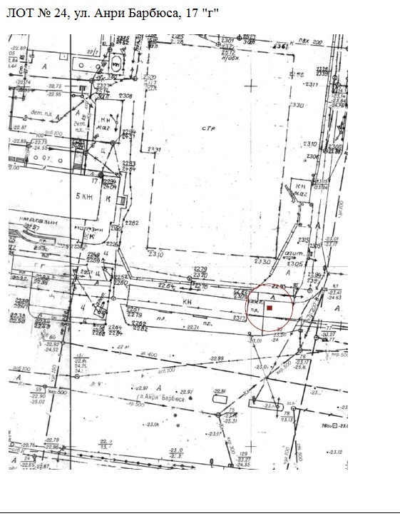
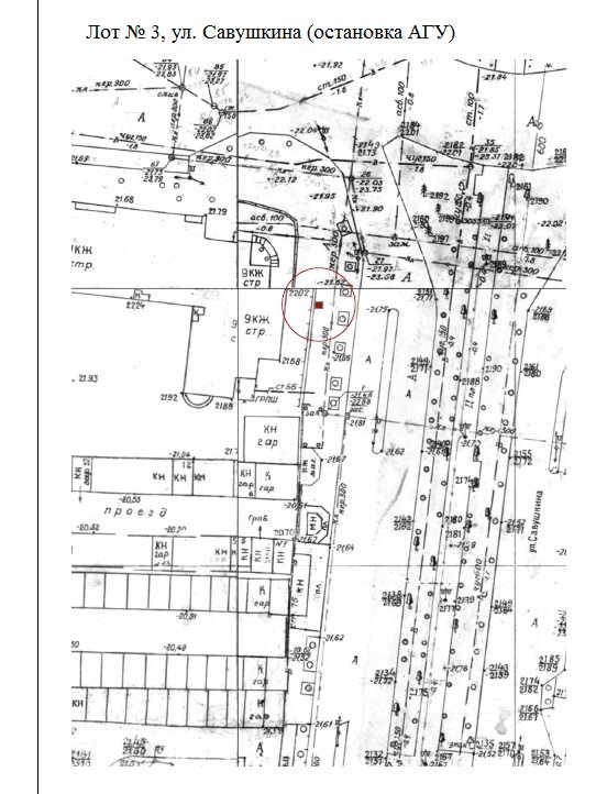
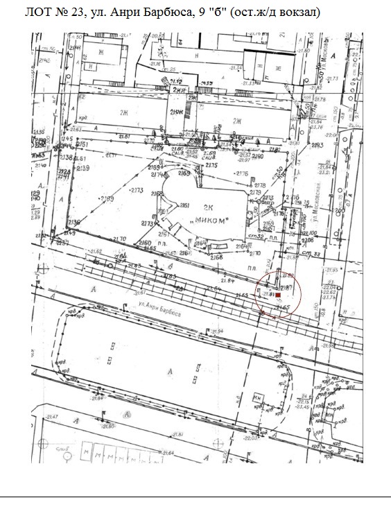
Место размещения нестационарных торговых объектов (прилагаются выкопировки из плана города в формате М 1:500 с указанием адреса и номера лота):
Период функционирования: весна-осень (06.2016-09.2016 включительно)
Ленинский район
ул. Ботвина, 10-квасной аппарат, реализация кваса;
ул. Ботвина, 26-квасной аппарат, реализация кваса;
ул. Савушкина (остановка АГУ)-квасной аппарат, реализация кваса;
ул. Савушкина, 2-квасной аппарат, реализация кваса;
ул. Савушкина, 2 "г"-квасной аппарат, реализация кваса;
ул. Савушкина, 8-квасной аппарат, реализация кваса;
ул. Савушкина, 23-квасной аппарат, реализация кваса;
ул. Савушкина, 44 "г"/Анри Барбюса-квасной аппарат, реализация кваса;
ул. Савушкина/Ак. Королева-квасной аппарат, реализация кваса;
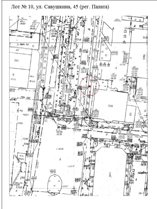
ул. Савушкина, 45 (рег. Палата)-квасной аппарат, реализация кваса;
ул. Савушкина, 46-квасной аппарат, реализация кваса;
ул. Савушкина, 47 "б"-квасной аппарат, реализация кваса;
ул. 28 Армии, 8 "б"-квасной аппарат, реализация кваса;
пл. Вокзальная, 1-квасной аппарат, реализация кваса;
пл. Вокзальная, 11-квасной аппарат, реализация кваса;
пл. Вокзальная, 20 "б" (Евросеть)-квасной аппарат, реализация кваса;
ул. Яблочкова, 1 "в"-квасной аппарат, реализация кваса;
ул. Яблочкова/Маркина (ост. Общественного транспорта "Маркина")-квасной аппарат, реализация кваса;
ул. Яблочкова/Б. Алексеева (ост. "Школа N 4")-квасной аппарат, реализация кваса;
ул. Яблочкова, 23 "а"-квасной аппарат, реализация кваса;
ул. Яблочкова, 31 (у пешеходного перехода)-квасной аппарат, реализация кваса;
ул. Яблочкова, 36/Б. Алексеева-квасной аппарат, реализация кваса;
ул. Анри Барбюса, 9 "б" (ост. ж/д вокзал)- квасной аппарат, реализация кваса;
ул. Анри Барбюса, 17 "г"-квасной аппарат, реализация кваса;
ул. Анри Барбюса, 27 "в"-квасной аппарат, реализация кваса;
ул. Беринга, 1 «п»-квасной аппарат, реализация кваса;
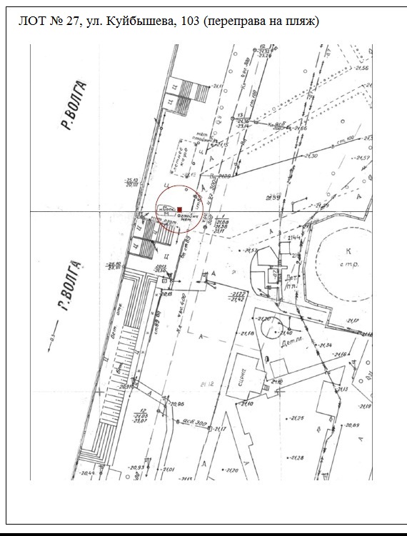
ул. Куйбышева, 103 (переправа на пляж)-квасной аппарат, реализация кваса;
ул. Куйбышева, 112-квасной аппарат, реализация кваса;
ул. Красноармейская (за ж/д вокзалом) - квасной аппарат, реализация кваса;
ул. Красноармейская 35 "а"- квасной аппарат, реализация кваса;
ул. Татищева, 2 (район больницы) - квасной аппарат, реализация кваса;
ул. Косм. В. Комарова, 65 "г"- квасной аппарат, реализация кваса;
ул. Славянская, 25 (проходная рынка "Славянский")-квасной аппарат, реализация кваса;
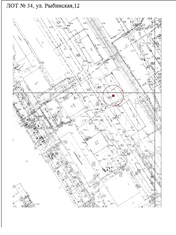
ул. Рыбинская, 12-квасной аппарат, реализация кваса;
ул. Рыбинская (напротив магазина "Молоток") - квасной аппарат, реализации кваса;
ул. Аксакова, 8-квасной аппарат, реализация кваса;
ул. Аксакова, 12 "а"- квасной аппарат, реализация кваса;
ул. Бабаевского/Жилая-квасной аппарат, реализация кваса;
ул. Бабаевского, 35, корп. 3-квасной аппарат, реализация кваса;
ул. Жилая, 11 "а"-квасной аппарат , реализация кваса;
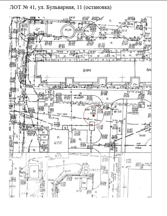
ул. Бульварная, 11 (остановка)- квасной аппарат, реализация кваса;
о. Городской-квасной аппарат, реализация кваса;
ул. Латышева, 18-квасной аппарат, реализация кваса;



